首页 新闻中心 党务公开 政府信息公开 政务大厅 互动交流 招商引资 风华秦汉 专题专栏

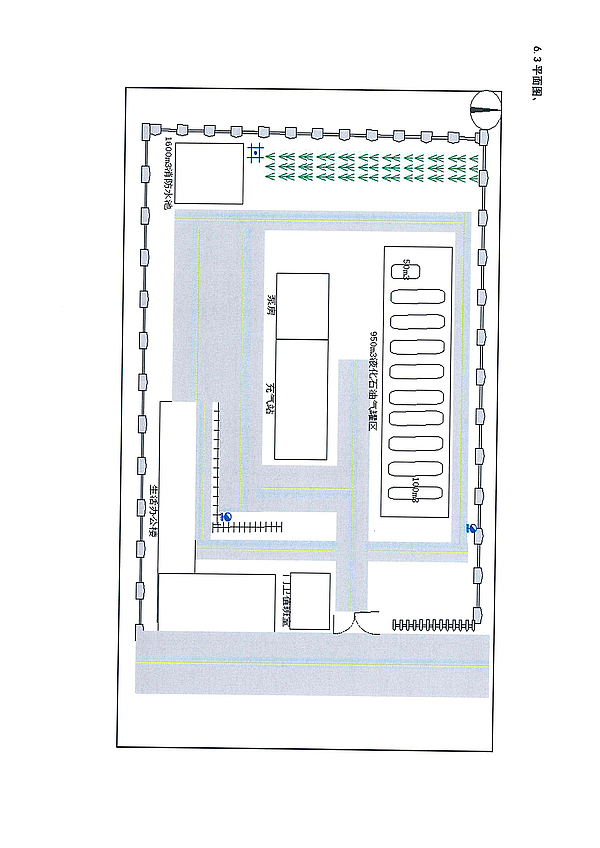
重点单位灭火救援预案(陕西明安能源有限责任公司)

主办:陕西省西咸新区秦汉新城管理委员会 地址:陕西省西咸新区秦汉新城兰池大道中段

电话:029-33185000 邮编:712000 网站地图

陕ICP备17019321号-3 网站标识码:6190000005 陕公网安备 61110202000208号