公示时间:2022年7月25日
项目名称:中铁新视界大厦
建设单位:中铁一局集团(西安)有限公司
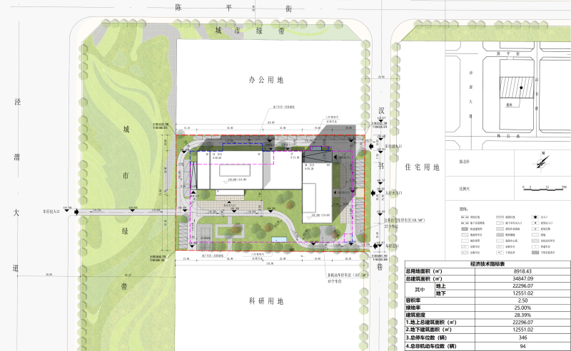
项目概况:本项目位于西咸新区秦汉新城塬北片区泾渭大道以东,陈平路以南,韩信路以北。本项目规划净用地面积8918.43㎡,总建筑面积34847.09㎡,主要建设办公及附属配套建筑等。详见总平面示意图。
公示期:7个工作日
批前公示并非最终审批结果。在公示期内,利害关系人若有意见,可来电向西咸新区自然资源和规划局(秦汉)工作部反映(联系电话:029-33136581)。
附件:1、总平面示意图

2、建筑方案效果图


西咸新区自然资源和规划局(秦汉)工作部
2022年7月25日

陕公网安备 61110202000208号