公示时间:2021年8月11日
项目名称:中天未来玥
建设单位:西咸新区中天房地产开发有限公司
项目概况:
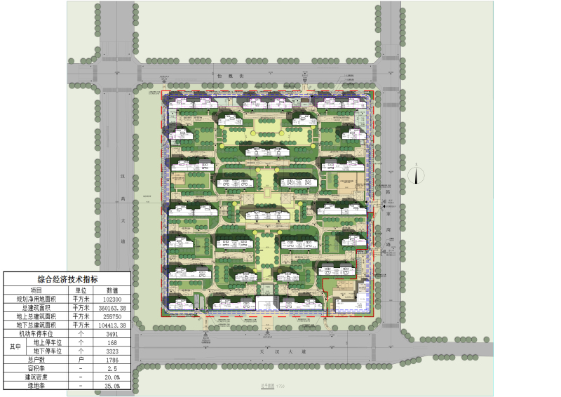
项目位于秦汉新城汉高大道以东、怡魏街以南、韩家湾路以西、天汉大道以北区域。项目规划用地面积102300平方米,总建筑面积360163.38平方米,规划机动车停车位3491个,主要建设住宅、配套公共建筑、地下车库等。
公示期:7个工作日
批前公示并非最终审批结果。在公示期内,利害关系人若有意见,可来电向秦汉新城自然资源和规划局反映(联系电话:029-33136582)
附件:1、总平面示意图
2、建筑方案效果图
1、总平面示意图

2、建筑方案效果图




陕公网安备 61110202000208号