公示时间:2021年2月23 日
项目名称:秦汉新城金旭苑
建设单位:陕西省西咸新区秦汉新城开发建设集团有限责任公司
项目概况:
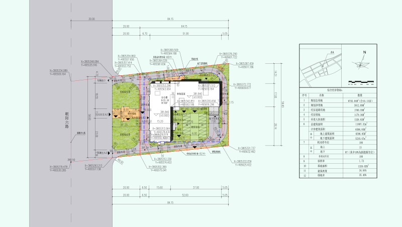
项目位于秦汉新城朝阳六路以东、咸铜铁路以南、金旭路以北区域。项目规划用地面积3812.09平方米,总建筑面积11807.32平方米,规划机动车停车位100个,主要建设办公楼、地下车库等设施。详见总平面示意图。
公示期:7个工作日
批前公示并非最终审批结果。在公示期内,利害关系人若有意见,可来电向秦汉新城自然资源和规划局反映(联系电话:029-33136582)。
附件:1、总平面示意图
2、建筑方案效果图
陕西省西咸新区秦汉新城自然资源和规划局
2021年2月23日
附件1:

附件2



陕公网安备 61110202000208号