公示时间:2025年11月14日
项目名称:西安秦汉新城秦源里
建设单位:陕西东顺宏盛房地产开发有限公司
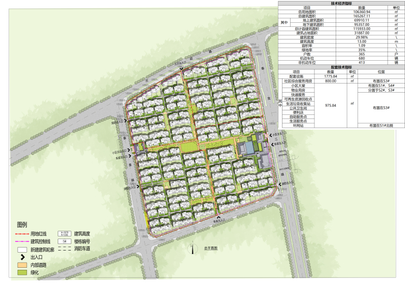
项目概况:陕西东顺宏盛房地产开发有限公司建设的西安秦汉新城秦源里项目,位于秦泉路以东、秦宫二路以西、兰启路以南、兰善路以北,规划净用地面积106360.94㎡,主要建设住宅和相关配套设施,规划总建筑面积约165267.11㎡,详见总平面示意图。该方案经文物行政主管部门审查同意,现予以公示。
公示期:7个工作日
批前公示并非最终审批结果。在公示期内,利害关系人若有意见,可来电向西咸新区自然资源和规划局(秦汉)工作部反映。(联系电话:029-33136581)
附件一:总平面示意图

附件二:方案效果图





陕公网安备 61110202000208号