
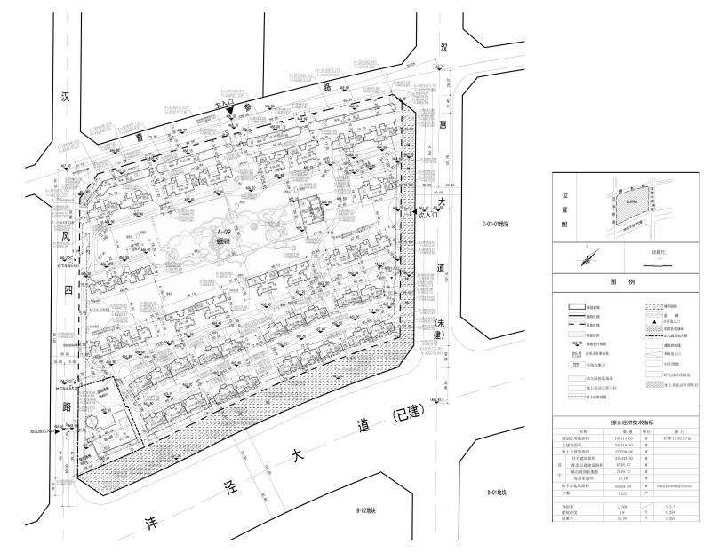
西咸新区自然资源和规划局(秦汉): 您好,我是西安恒大文化旅游城A09地块业主,由于A09地块项目建设开工时间较早,在秦汉新城管委会官网未查找到此地块项目设计方案的公示,可否将此地块项目设计方案(含总平面示意图、建筑方案效果图等)发于我的邮箱,或者回复于此问题附件中,在此表示感谢!
尊敬的网民朋友:
您好!感谢您对西咸新区秦汉新城管委会的关注。收到您的留言,我们十分重视。
关于您咨询的问题,已附于留言回复下方,请查收。
再次感谢您的留言,欢迎您继续关注和支持秦汉新城,提出更多宝贵的意见和建议。



主办:陕西省西咸新区秦汉新城管理委员会 地址:陕西省西咸新区秦汉新城兰池大道中段
电话:029-33185000 邮编:712000 网站地图
陕ICP备17019321号-3
网站标识码:6190000005
陕公网安备 61110202000208号